A modern backyard with a stone pathway, lawn, and outdoor seating area with chairs and a bicycle in front of a contemporary house with brick and glass exterior.
Modern kitchen and dining area with large skylight, wooden cabinets, marble island, and a sliding glass door leading outside.

Blackheath, London 2025

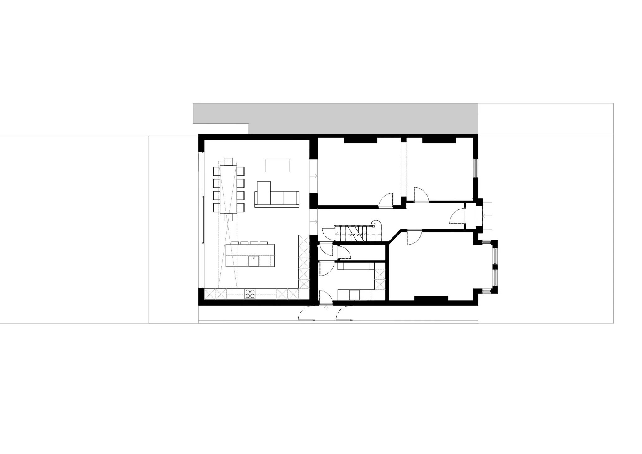
Located within a Conservation Area in Blackheath, this project involved the sensitive extension of a large Victorian semi-detached property. The client’s brief was to transform the ground floor into a generous open-plan kitchen, living, and dining space that would strengthen the relationship between the house and its expansive rear garden, while remaining respectful of the building’s historic character.

The design approach carefully balances contemporary intervention with the existing Victorian fabric. The ground floor extension is conceived as a light-filled volume that opens fully to the garden, creating a strong visual and physical connection to the landscape beyond. An oversized timber sliding door system spans the rear elevation, maximising views and allowing the living spaces to extend seamlessly outdoors during warmer months.

To further enhance daylight penetration, a large rooflight is positioned above the dining area, introducing natural light deep into the plan and creating a focal point within the space. This overhead light source complements the expansive glazing to the rear, ensuring the interior remains bright and well-lit throughout the day. The resulting layout provides a flexible and contemporary family space while preserving the integrity and setting of the original Victorian property.

Floor plan of a modern house showing living room, dining area, kitchen, bedrooms, bathrooms, staircase, and entrance.