Modern black backyard shed with glass doors, surrounded by a landscaped garden with benches and trees.
A modern kitchen and dining area with large windows, a marble kitchen island with a black faucet, wooden dining table with chairs, a grey armchair, and outdoor greenery visible through the windows.

Lewisham, London 2024

Located in Lewisham, this mid-terrace Victorian property had become increasingly constrained and no longer suited the evolving needs of a growing young family. The original ground-floor layout was fragmented and lacked a strong connection to the rear garden, limiting both daylight and functionality.

The design approach focused on maximising the existing footprint while introducing a carefully considered wrap-around extension to increase the overall floor area. Internally, the ground floor was reconfigured to create a more generous, open-plan kitchen, dining, and family space, improving circulation and allowing the home to better support everyday family life.

A key part of the client’s brief was the use of natural, robust materials that would age gracefully and sit comfortably within the garden setting. The extension responds with a restrained palette of charred black timber cladding, London stock brickwork to match the existing house, and a slim-profile Crittall-style door that frames views out to the garden while allowing light to flood the interior.

The side infill element is capped with two large glazed roof panels, drawing natural light deep into the plan and transforming what would traditionally be a darker area of the house. These rooflights help create a bright, airy interior while reinforcing a strong visual connection between the new living spaces and the outdoor landscape.

Overall, the project carefully balances contemporary intervention with respect for the character of the original Victorian terrace, delivering a flexible, light-filled family home that responds to both its context and the clients’ long-term needs.

Floor plan of a two-story house with various rooms, stairs, and entry doors, shown in black and white.
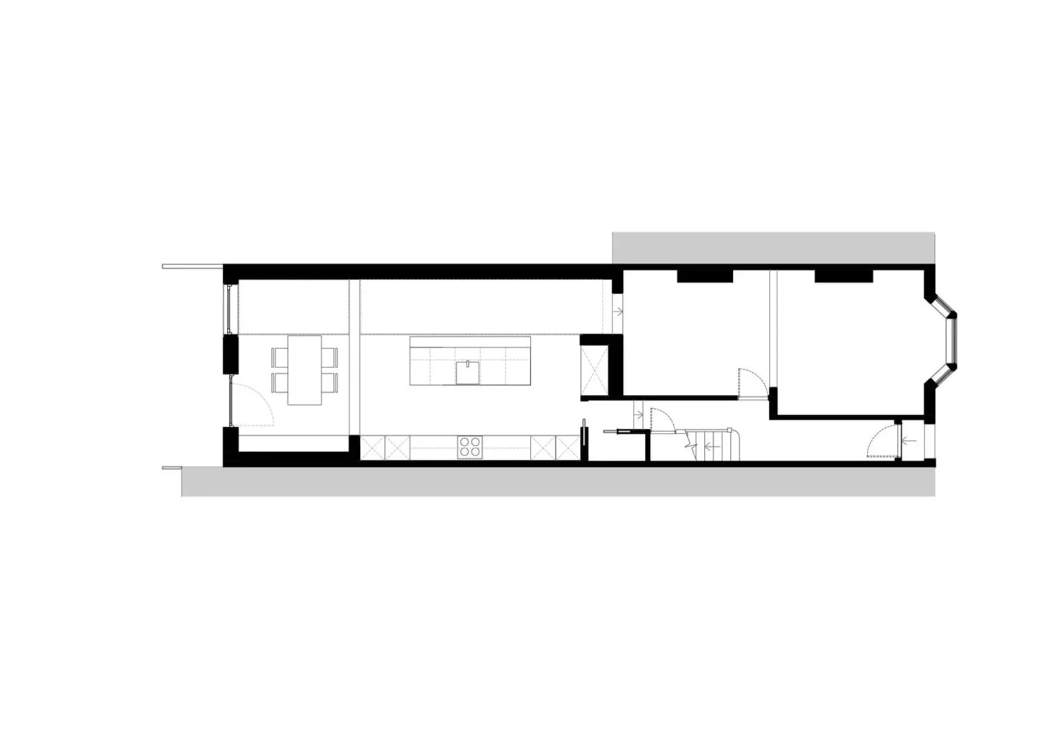
Floor plan of a single-story house with a dining area, kitchen with island, living room, two bedrooms, and bathrooms.