A woman watering plants in a backyard garden with a multi-story brick house in the background. The house has large windows and sliding glass doors leading to a patio. The garden is bordered by a wooden fence and has lush greenery and flowers.
Modern dining room with wooden flooring, a white table, six wooden chairs, white brick wall, large windows, and a sliding glass door opening to a backyard with greenery.
Backyard with trees, garden, wooden deck, stairs, and a two-story brick house with windows and doors.

Greenwich, London 2025

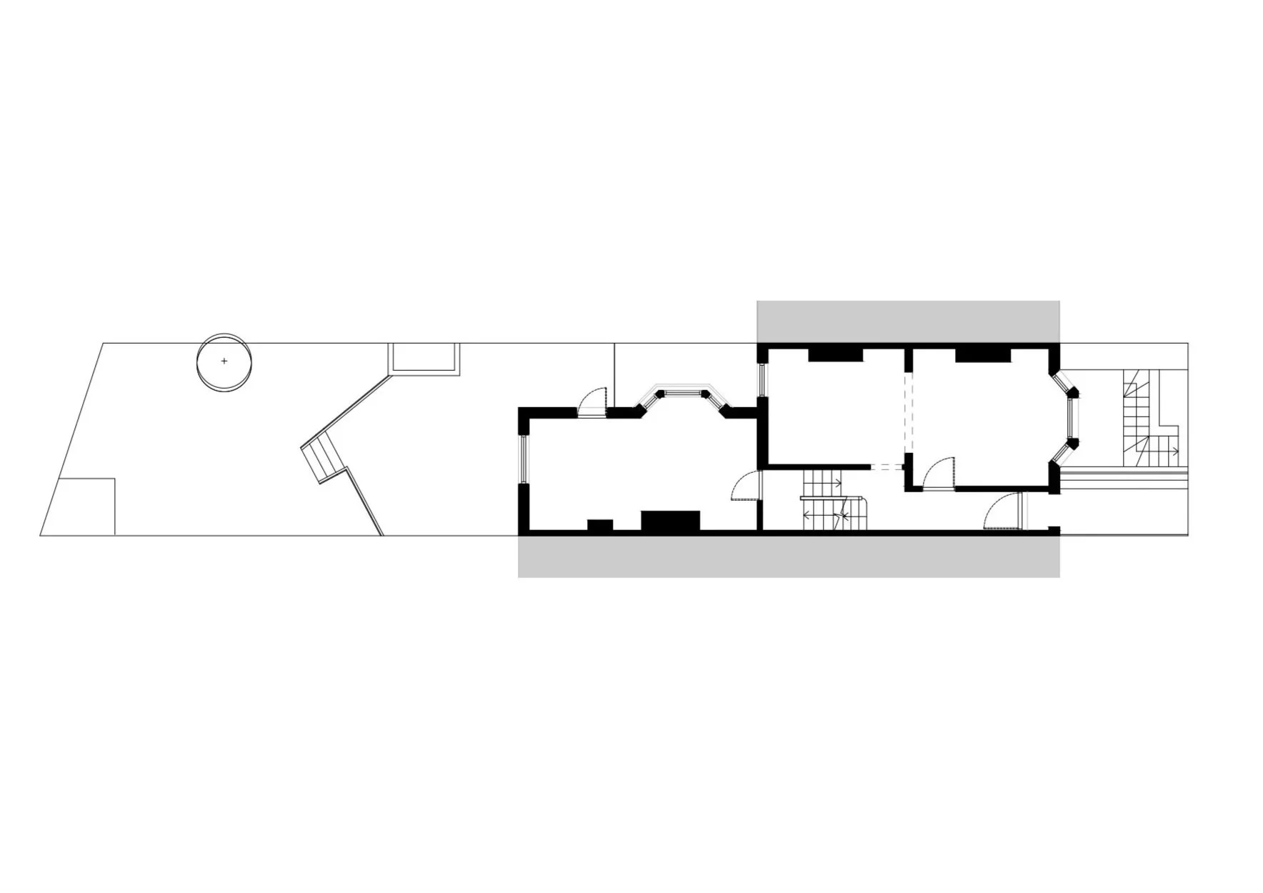
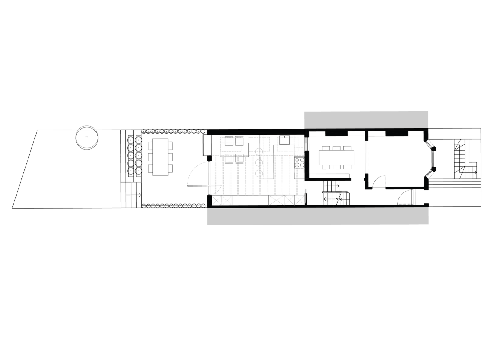
The project is located within a Conservation Area. The brief was to remodel the existing kitchen and extend it through a side infill extension, increasing the floor area to accommodate a new kitchen peninsula and significantly improve daylight to the space.

A restrained and contextually appropriate infill extension was proposed, incorporating an oriel box window with integrated seating, creating a place to sit and engage with the outdoor landscape. A pivot door system enables a seamless transition between the internal kitchen space and the external terrace.

Materials were carefully selected to respect the historic context, including matching London stock brick laid with a stacked header course, and a copper box gutter with hopper and downpipe.

The existing timber decking to the rear was replaced with a new paved terrace incorporating integrated planter steps, enhancing the relationship between the kitchen and the garden.

Architectural floor plan of a house with multiple rooms, staircase, and a backyard with a tree and outdoor patio.
Floor plan of a narrow house with outdoor yard, dining area, kitchen, living room, and stairs.