Architectural model of a modern multi-story residential building made of wood with balconies, a central staircase, landscaping, and bicycles in a parking area.
A modern, multi-story apartment building with brick exterior and green balconies, set amidst autumn trees with fallen leaves on the street and sidewalk in front.

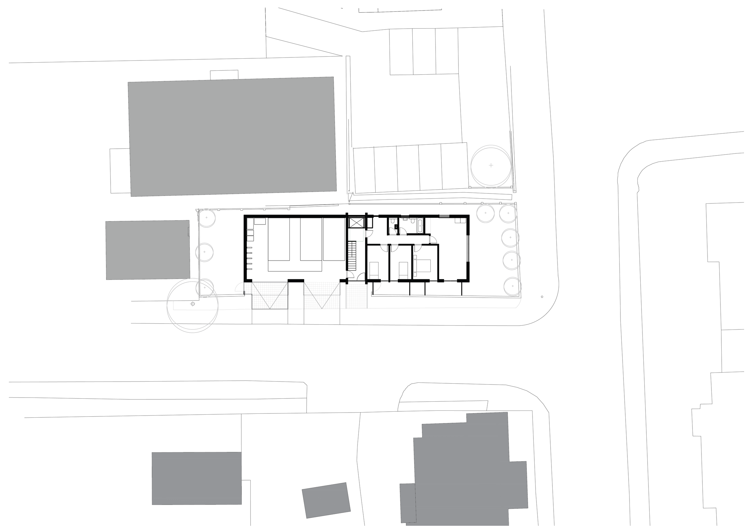
Upminister, London 2025

Situated on a highly prominent corner plot in East London, this project replaces an existing mixed-use building with a newly constructed three-storey residential block comprising five apartments. The redevelopment rationalises the site layout, introducing on-site parking at ground level alongside clearly defined private and communal amenity spaces to support long-term residential use.

The design strategy is driven by the site’s corner condition and its visibility within the surrounding streetscape. Active street frontages are employed along both elevations, increasing natural surveillance and reinforcing the relationship between the building and the public realm. The massing and alignment of the proposal carefully follow the established building lines and site boundaries, ensuring a coherent and contextual response to the surrounding urban fabric.

Material selection plays a key role in anchoring the development within its context. A red brick façade was chosen to reflect the prevailing character of the area, offering a durable and familiar material language while allowing for a contemporary interpretation through detailing, proportions, and fenestration. The articulation of the elevations breaks down the scale of the building, providing visual interest and contributing positively to the character of the street.

Internally, the apartments are arranged to maximise daylight, outlook, and privacy, with dual-aspect units provided where possible. Amenity spaces are carefully positioned to enhance residential quality while maintaining a clear separation between public and private realms. The resulting scheme delivers a compact yet well-considered residential development that responds sensitively to its urban setting while making efficient use of a constrained corner site.

Architectural site plan showing a detailed building layout with surrounding trees and neighboring structures, in black and white.