Modern residential house with brick and dark siding, surrounded by trees, a brick landscaped border, and a garden with plants and bushes.
Modern kitchen with a large window overlooking greenery, featuring a grey island with a bowl of fruit, three wooden barstools, light wood cabinetry, green tiled backsplash, coffee machine, black sink faucet, and wooden ceiling beams.

Morden, London 2025

Working with an end-of-terrace property in Morden, Sutton, the project explored the opportunity to utilise the generous side garden as an infill site for a new dwelling. The client’s ambition was to maximise the potential of the plot while maintaining a sensitive and considered response to the existing residential context.

The design approach placed particular emphasis on scale, massing, and streetscape integration, given the prominent position of the new dwelling at the end of an established terrace. Careful consideration was given to the height, proportions, and roof form to ensure the proposal sits comfortably alongside the existing row of houses, avoiding any visual dominance or disruption to the rhythm of the street.

Boundary treatments were also carefully developed as part of the overall streetscape strategy. The proposed boundary wall combines a low-level planter wall to the front garden with more solid elements where appropriate, helping to soften the street edge while maintaining privacy.

In terms of architectural language and materials, the proposal draws directly from the character of the existing terrace. The new dwelling adopts a complementary style, reflecting the scale, detailing, and material palette of the surrounding houses and boundary walls, ensuring a cohesive and sympathetic addition to the street.

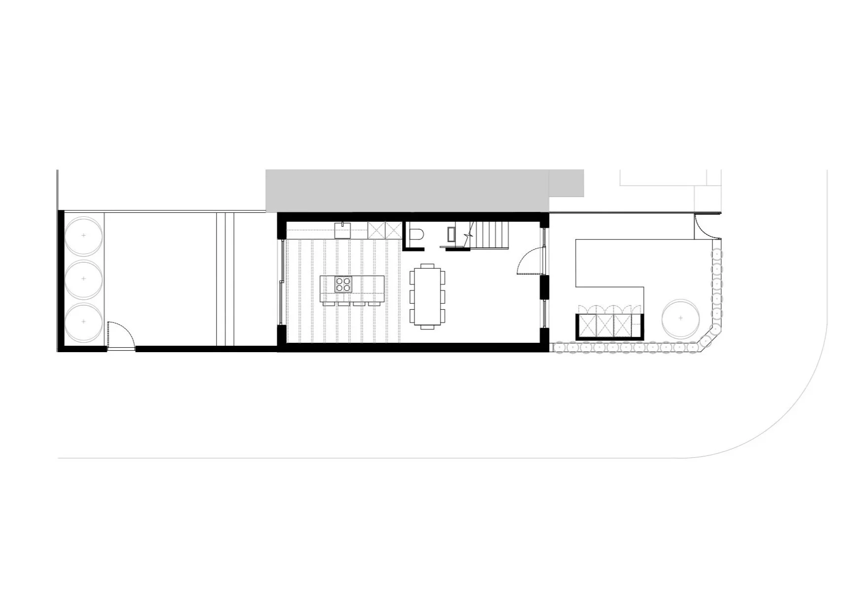
Architectural floor plan of a narrow, elongated house showing a backyard, living area, kitchen, dining area, staircase, and front yard with outdoor seating and garden.
Architectural floor plan of a house with interior rooms and surrounding outdoor landscaping
Residential neighborhood with two-story brick homes, parked cars, green trimmed hedges, and a street view in a suburban area.
A grayscale map showing residential houses along streets with parking spaces, property boundaries, and building footprints.